108

Mansion Design Reform

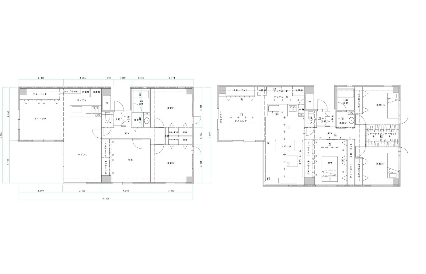
マンションのデザインリフォーム

神戸市 M邸

Structure
108m²
Term
工期 3ヶ月
Price
2444万円(税込)

事例写真

基本工事内容
  • 解体工事(間仕切、天井、建具、住宅設備機器、解体&撤去)
  • 解体部分 天井、カベ、床下地新設及、補修、補強工事
  • LDK床暖房温水パネル敷設(大阪ガス)
  • 全室床暖房 厚み調整用 ダミーパネル敷設
  • プラン通 間仕切新設工事
  • 全室パナソニック建具新設工事
  • パナソニック下駄箱新設工事
  • パナソニック 玄関カマチ新設
  • パナソニック 床見切り新設
  • 部屋内全室 床 パナソニック マスターズウッドフロア(ダブルコート) フローリング貼(LL-45)
  • 洗面所、トイレ 床 パナソニック トリプルコート 石目サニタリー フローリング貼
  • パナソニック幅木新設
  • ダイニング、寝室、洋室(2部屋)WIC 収納内部
  • パナソニック システム収納 アイシェルフ新設
  • リビング パナソニック TV台 キュビオス新設
  • ダイニング西窓 カウンター新設
  • ダイニング西窓 カウンター下部 オリジナル収納新設(引出タイプ)
  • 洗濯機置き場上部 オリジナル吊戸棚新設
  • 既存電気配線全改修~新配線引き込み等の電気工事
  • ブレーカー交換工事
  • 照明工事(グレアレスダウンライト、ユニバーサルダウンライト間接照明、ダウンライト専用調光スィッチ、ダクトレール)
  • 全室 スィッチ、コンセントパナソニック コスモシリーズ スクエアタイプ新設
  • 全部屋 給気口、クーラースリブ交換
  • 全室エアコン新設(5台)
  • 各部位設備工事(給排水、給湯、ガス配管工事)
  • キッチン リクシル リシェル 新設工事
  • キッチン側面 キッチンパネル新設工事
  • カップボード リクシル リシェル新設
  • ユニットバス TOTO シンラ 新設工事(大阪ガス浴室乾燥機共)
  • 洗面化粧台 TOTO エスクワ新設工事
  • トイレ TOTO レストルーム空間フリープラン新設工事
loading